Cantine- TWD

Cantine and restaurant design for TWD office,
Marconistraat,
Rotterdam
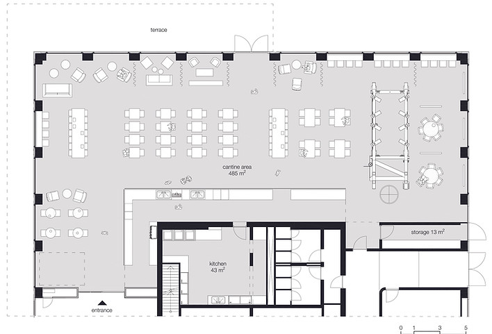
This interior project is located in the Lee Towers, former office towers at the Marconiplein in Rotterdam that has been renovated and transformed into a cantine project. On the plinth of the building, the TWD office envisioned creating a new office cantina. The primary design strategy was to create a space that will showcase TWDs ingenious engineering solutions.
Idea was to design a set of interconnecting spaces and functions linked to the central space of the canteen. Providing consistent themes of maritime in combination with comfortable and relaxing dining spaces. For the dining experience to be complete, the senses must be stimulated not only by the menu but also by the architecture.
Type of work: Office cantine and event space design
Location: Rotterdam
Completion: 2021
Size: 550m2
Client: TWD, Rotterdam
Photographs: Doug Hobbs, Sara Miladinovic, HISTUDIO



Bar design
Gripper model in the space
















