top of page
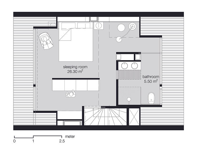
House P

Attic renovation
House P,
Rotterdam
This is a paragraph. Use this area to add any information you want to share with users. Just click "Edit Text" or double click here to change the text and make it your own. You can also adjust the paragraph's font, size and color so it fits your website’s theme.
This is a great place to tell users a story about your website and let them know more about what you offer. You may want to share information about your company's background, your team, or the services you provide. Be sure to keep the tone and voice consistent throughout the site so users become familiar with your brand.
Type of work: Attic conversion into master bedroom
Location: Rotterdam
Completion: 2019, 1st phase
Size: 70m2
Client: Private client
Photographs: Histudio







bottom of page



